XỬ LÝ NƯỚC THẢI GIẶT TẨY
* Giới thiệu dịch vụ:
Thông số nước thải giặt tẩy

Công nghệ xử lý

Thuyết minh công nghệ
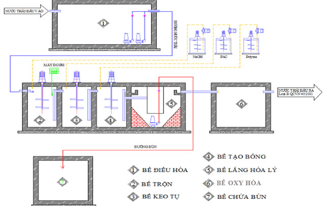
Bể điều hòa
Nước thải bột giặt sẽ được thu gom tại đây, bể điều hòa có nhiệm vụ điều hòa lưu lượng và nồng độ ô nhiễm đảm bảo cho quá trình hóa lý phía sau xử lý đều và triệt để hơn. Sau đó nước thải từ bể điều hòa được hệ thống bơm chìm lắp dưới đáy bể, bơm sang bể cụm bể trộn.
Bể trộn
Bể trộn ở đây có nhiệm vụ khuấy trộn để điều chỉnh pH của nước thải, hóa chất NaOH sẽ được châm vào thông qua bởi hệ thống điều chỉnh pH tự động. Chức năng cơ bản của hệ thống này là tự động đo pH của nước thải, phân tích và phát tính hiệu điều chỉnh bơm hóa chất chỉnh pH, đồng thời thiết bị khuấy trộn sẽ khuấy đều cho đến khi pH đạt giá trị tối ưu là 7.5
Bể keo tụ
Bể keo tụ có nhiệm vụ keo tụ nồng độ chất bẩn lại với nhau bằng cách châm hóa chất PAC nồng độ 10%. Nước thải từ sẽ được châm dung dịch PAC với lưu lượng được tính toán sẵn nhằm đảm bảo nồng độ PAC tối ưu để xử lý nước thải có chứa độ cặn, SS, COD,. Thiết bị khuấy trộn nước thải làm tăng khả năm hòa trộn chất keo tụ vào trong nước thải.
Bể tạo bông
Sau khi nước thải được keo tụ sẽ được chảy tràn qua bể tạo bông, bể tạo bông có nhiệm vụ là gom các bông bùn đã được keo tụ lại thành một bông bùn có kích thước lớn hơn. Quá trình tạo bông sẽ được châm thêm chất trợ lắng polyme kết hợp với quá trình khuất trộn rồi nước thải sẽ được đưa qua bể lắng hóa lý.
Bể lắng hóa lý
Sau khi nước thải về bể lắng hóa lý quá trình tạo bông hình thành làm tăng khả năng lắng của bông bùn. Bùn sẽ được thu về bể chứ bùn.
Bể Oxy hóa
Nước thải sau khi xử lý sơ bộ hóa lý sẽ được oxy hóa tại bể oxy hóa, tùy thuộc vào loại hình hoạt động, nồng độ các chất ô nhiễm có trong nước thải mà quy trình oxy hóa sẽ khác nhau. Nước thải sau quá trình oxy hóa sẽ được dẫn ra ngoài, đạt quy chuẩn xả thải cho phép của bộ tài nguyên môi trường.
Bể chứa bùn
Bể chứa bùn dùng để chứa bùn từ quá trình keo tụ, bùn sẽ được bơm từ bể lắng về bể chứa bùn, bùn sẽ được bơm qua sân phơi bùn.

* Hãy liên hệ ngay với Công Ty Cổ Phần Việt Water để được tư vấn chi tiết.

MỤC LỤC NGÀNH NGHỀ